Voltar

Blanes Costa Brava III

Blanes Costa Brava III

RESUMO DO PROJETO

  • Objectivo: Financiar os custos associados à construção de um edifício com 8 apartamentos e 12 lugares de estacionamento.
  • Localização: Blanes, Gerona, Espanha.
  • Tipo de oportunidade: Empréstimo.
  • Tipo: Taxa fixa.
  • Pontuação: A efectuado pela empresa GLOVAL.
  • Garantia: Primeira hipoteca registada na Conservatória do Registo Predial.
  • Rácio empréstimo/valor (LTV):  68,18%
  • Taxa de juro nominal anual: 10%.
  • Prazo de vencimento: 11 meses.
  • Rentabilidade da oportunidade: 9,17%.
  • Tipo de reembolso do capital: No vencimento.
  • Pagamento de juros: Trimestral.
  • Terreno: Propriedade do promotor.
  • Licença: Atribuído pela Câmara Municipal de Blanes. 
  • Vendas: Das 8 habitações que compõem o projeto, 7 já foram reservadas, o que representa 87,5% do empreendimento.
  • Situação do projeto: a obra está atualmente 22,69% concluída.
  • Investimento mínimo: 300€.


PROJETO

Apresentamos Blanes Costa Brava III, terceira fase de um projeto a taxa fixa com garantia hipotecária de primeiro grau que consiste no financiamento dos custos associados à construção de um edifício com 8 habitações e 12 lugares de estacionamento, situado em Blanes, Gerona, Espanha.

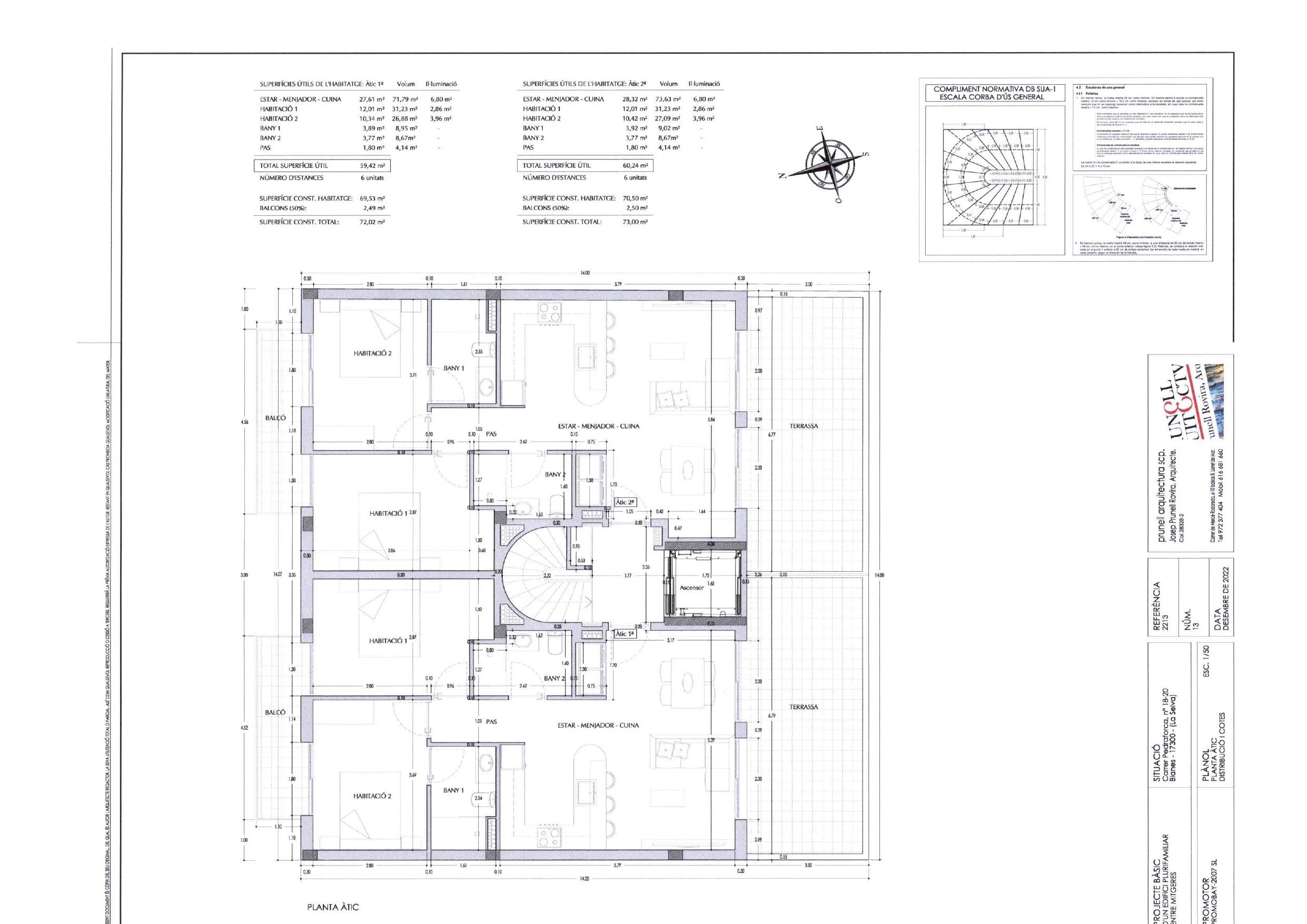
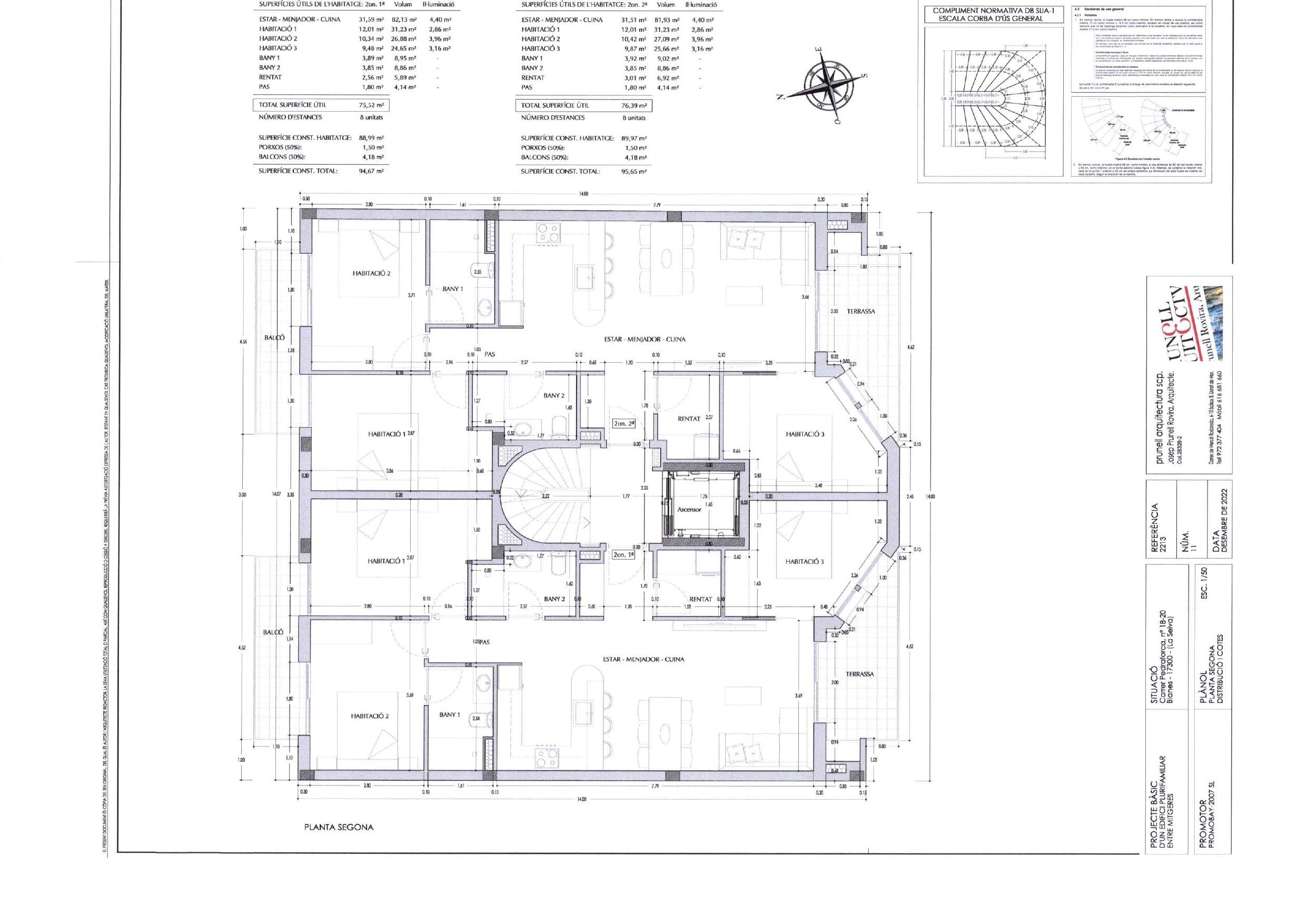
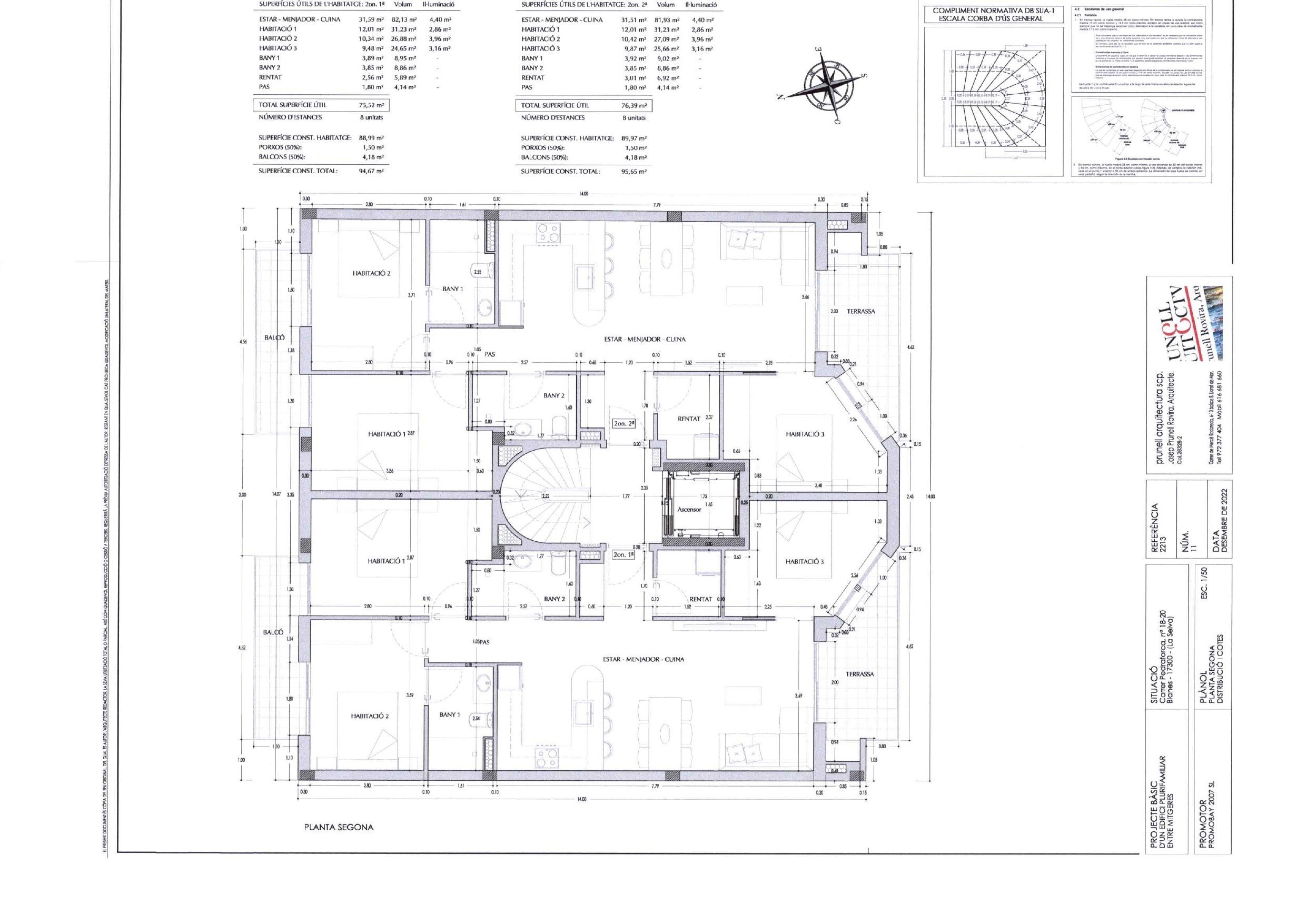
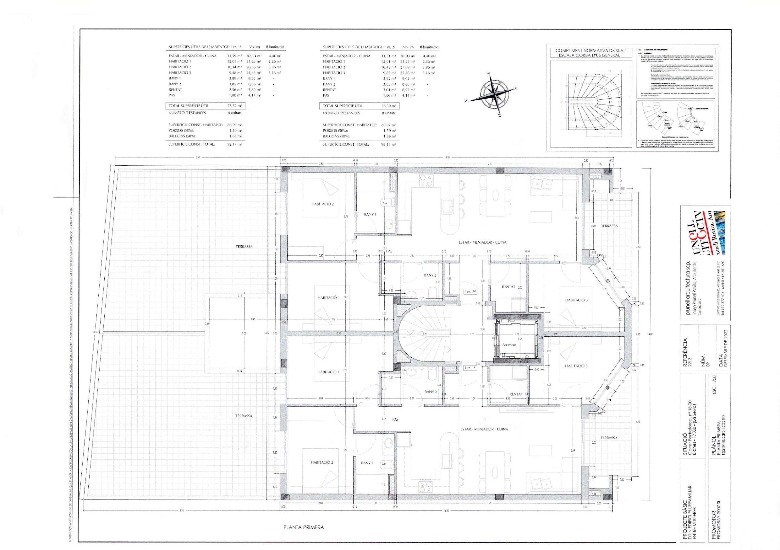
O Edifício é um empreendimento de 8 habitações de tipologias T2 e T3, todas com um lugar de estacionamento e algumas com a possibilidade de instalar painéis fotovoltaicos para serem auto-suficientes.

Trata-se de um edifício com um portal que dá acesso a 7 habitações. Um rés do chão tem uma entrada independente. Todos os apartamentos têm 2 terraços onde se pode sair para almoçar ou jantar. Para além disso, os 2 pisos térreos têm um grande terraço e um pequeno pátio.

As casas do Edifício têm um design prático e moderno.

  • As penthouses com 2 quartos têm cozinhas abertas agradáveis, os 2 quartos têm acesso à varanda, a sala de jantar com cozinha aberta leva a um terraço de 20 m² onde pode almoçar ou jantar.
  • As 2 penthouses têm 2 casas de banho, uma delas em suite.
  • Os 2 pisos térreos têm 2 quartos mais uma sala de engomar ou quarto de hóspedes, 2 casas de banho, uma delas em suite. Tem acesso a um terraço de 26 m².
  • O outro rés do chão tem uma entrada independente da rua, 3 quartos duplos, um deles em suite, 2 casas de banho e um terraço de 26 m².
  • As 2 habitações do primeiro andar têm 3 quartos duplos, 2 dos quais com acesso a um terraço de 45 m², a sala de estar/jantar tem acesso a uma varanda frontal. Dispõem igualmente de 2 casas de banho.
  • Os apartamentos do primeiro andar têm 3 quartos duplos e 2 casas de banho, uma varanda na frente e uma varanda nas traseiras.

Todas as casas têm Aerotermia para aquecimento, arrefecimento e AQS.

A área total de construção do empreendimento é de 1.228,79 m².

O terreno em que o projeto será desenvolvido já é propriedade do promotor, sem quaisquer ónus, e a licença de construção foi concedida pela Câmara Municipal de Blanes.

Este empréstimo de 185.000 euros corresponde à terceira parcela de um projeto de 900.000 euros (estão previstas quatro fases do projeto) com uma data de vencimento final em 26 de setembro de 2026. A duração desta tranche é estimada e está condicionada ao tempo de financiamento do empréstimo desta fase do projeto e, consequentemente, a garantia hipotecária é novada com a da tranche anterior, uma vez que, tratando-se de um projeto único, a data de vencimento será a mesma para todas as tranches do projeto.


PANORAMA FINANCEIRO

Galeria de imagens


Plantas



DESCRIÇÃO DA GARANTIA HIPOTECÁRIA

A garantia hipotecária prestada pelo promotor são as 8 habitações e os 12 lugares de estacionamento objeto do projeto localizado na calle Pedroforca 15, Blanes - Gerona, Espanha.

De acordo com o certificado de avaliação emitido pela Valum em 07/10/2025, o valor atual da hipoteca/avaliação do imóvel descrito é de 1.055.988,05€.

Assim, a valorização do imóvel hipotecado no empréstimo é de 146,66% (valor da hipoteca 1.055.988,05€ / montante do empréstimo 720.000€). O LTV (Loan To Value) do projeto é de 68,18% (montante do empréstimo 720 000 euros / valor de avaliação atual 1 055 988,05 euros). 

O valor estimado do imóvel num cenário concluído, de acordo com o método de comparação, ascende a 2.488.636,16 euros.



AGENTE DE GARANTIAS

O Agente de Garantia escolhido para este projeto é a Ramallo Legal Abogados S.L.P, uma empresa profissional com vasta experiência em sectores financeiros que presta serviços de consultoria e serviços fiduciários na emissão de obrigações, garantias e outros títulos. A Ramallo Legal Abogados S.L.P, não está associada a nenhum grupo de serviços financeiros.


O PROMOTOR

O promotor do projeto é a Promobay - 2007 S.L., uma empresa pertencente ao sector da construção no domínio da construção, tanto de novas construções como de renovação, reabilitação e manutenção de edifícios. A empresa promotora é também responsável pelo processamento de licenças, projectos de execução, obras de construção e legalização de edifícios.

A Promobay - 2007 S.L. é uma empresa comprometida com o desenvolvimento de projectos que não só geram valor económico, como também contribuem para o bem-estar e o crescimento das comunidades em que se inserem.

A Promobay - 2007 S.L é composta por um grupo de profissionais com inúmeros projetos e conta com fundos próprios de 1.461.000 € a 31/12/2024 e um capital social de 1.684.725 € a 31/12/2024. 

O promotor poderá no futuro solicitar outros empréstimos através da plataforma para obter financiamento para a concretização de outros projectos, dentro dos limites legais e desde que a sua situação financeira o permita. A alavancagem futura da empresa poderá assim ser superior.


SCORING

A avaliação é efectuada pela GLOVAL.

A Glóval é uma empresa de referência em serviços de avaliação integral, engenharia, consultoria e análise de dados. Resultado da integração em 2017 de empresas com uma sólida posição no mercado, mais de 70 anos de experiência acumulada e mais de 5 milhões de avaliações realizadas, presta serviços em toda a cadeia de valor do sector imobiliário.

A empresa conta com uma equipa de mais de 1.000 profissionais, uma presença nacional e uma cobertura internacional através da presença em países como Portugal, Grécia, Brasil, Cabo Verde, Angola e Moçambique. A Glóval conta com a confiança dos principais players do sector imobiliário e a sua atual estratégia de diversificação está centrada no aumento do seu portfólio de serviços, na satisfação das necessidades de novos sectores e clientes e na continuação da sua expansão internacional.

Para mais informações, visite www.gloval.es.


MONITORIZAÇÃO DO PROJETO

A GLOVAL fará o acompanhamento deste projeto, tendo um controlo permanente do destino do capital disponibilizado pelos investidores e entregando esse capital ao promotor de acordo com um calendário acordado após a entrega da justificação do cumprimento das certificações. Para o efeito, a Plataforma tomará as medidas necessárias para abrir a conta oportunidade na instituição de pagamento colaboradora (Lemonway), cujo titular será a empresa promotora da Oferta de Financiamento Participativo. Os fundos serão disponibilizados através da empresa verificadora, mediante um calendário de pagamentos no qual serão devidamente justificadas todas as despesas do projeto a suportar pelo promotor..


UBICAÇÃO

O projeto Blanes Costa Brava está situado na cidade de Blanes, Gerona, Espanha.

A extensão e a localização de Blanes é uma das zonas com maior diversidade de utilização do solo em todo o município. Assim, por um lado, na zona diretamente limítrofe com o centro da cidade, existem zonas residenciais, algumas das quais foram construídas nas últimas décadas com o objetivo de atrair um maior número de residentes estáveis e equipamentos como:

  • Centro de saúde.
  • A cidade desportiva de Blanes.
  • A estação de comboios.
  • Várias zonas comerciais.
  • Vários centros de lazer.


Localização


TARIFA PROJETO

A Housers não cobrará qualquer taxa ao investidor por esta oportunidade. Ao promotor será cobrada uma taxa que é determinada com base numa % dos fundos angariados para o projecto, desde que o projecto seja financiado com sucesso, ou seja, que o objectivo de financiamento publicado na plataforma seja alcançado. Caso não seja financiado com sucesso, a Housers não cobrará esta taxa. Uma vez terminada a campanha e como passo prévio à entrega do capital ao promotor, esta comissão é deduzida da mesma a favor de Housers. Não afecta a rentabilidade final obtida pelos investidores, uma vez que é o Promotor que assume o seu custo. Nesta oportunidade a comissão da Housers é de 6.5% + IVA sendo a comissão financiada dentro da oportunidade. 


ADVERTÊNCIAS

A Housers cumpre o Regulamento (UE) 2020/1503 do Parlamento Europeu e do Conselho, de 7 de outubro de 2020, relativo aos prestadores europeus de serviços de financiamento de capital próprio às empresas, e que altera o Regulamento (UE) 2017/1129 e a Diretiva (UE) 2019/1937 e está autorizada pela CNMV como Plataforma Financeira Participativa registada com o número 13.

A Housers não é uma instituição de crédito nem uma empresa de serviços de investimento. Não é membro de nenhum fundo de garantia de investimentos ou fundo de garantia de depósitos. Por conseguinte, o capital investido não está abrangido por estes fundos.

A Housers não é uma instituição de crédito nem uma empresa de serviços de investimento, nem presta aconselhamento financeiro, pelo que nada neste website deve ser interpretado como tal. A informação nesta página é apenas para fins de informação geral e não constitui um conselho específico.

Os projetos de financiamento colaborativo publicados no website não estão sujeitos à autorização ou supervisão da Comissão Nacional do Mercado de Valores ou do Banco de Espanha ou de qualquer outra entidade reguladora nacional ou estrangeira. A informação fornecida pelo promotor não foi revista pela CNMV e não constitui um prospecto aprovado pela CNMV. 

O promotor do projeto é responsável perante os investidores pela informação que forneceu à plataforma de crowdfunding para publicação dentro do projeto no website. A informação apresentada foi preparada pela Housers com base na informação disponível fornecida pelo promotor. Nem a Housers nem as suas empresas ou fornecedores colaboradores aceitam a responsabilidade ou obrigação em relação à exactidão ou suficiência das informações referidas ao projeto. As afirmações ou declarações com projecções futuras referem-se exclusivamente à data em que foram expressas, não constituem qualquer garantia de resultados futuros.

De acordo com o REGULAMENTO (UE) 2020/1503 DO PARLAMENTO EUROPEU E DO CONSELHO de 7 de outubro de 2020 relativo aos prestadores europeus de serviços de financiamento coletivo para empresas, informa-se que este projeto pode envolver partes relacionadas, de acordo com o Código de Conduta Interno da Housers, que podem adquirir a condição de investidores e, portanto, de credores. O montante e a participação final destas partes serão comunicados a todos os investidores do projeto, uma vez concluído o financiamento do mesmo.


RISCOS

Antes de investir neste projeto, o investidor deve conhecer os riscos do seu investimento: Housers recomenda a leitura cuidadosa da Informação Básica para o Investidor.

Em conformidade com o artigo 2.1 do Regulamento (UE) 2020/1503 do Parlamento Europeu e do Conselho, de 7 de outubro de 2020, relativo aos prestadores europeus de serviços de financiamento colaborativo de capital próprio para empresas, e que altera o Regulamento (UE) 2017/1129 e a Diretiva (UE) 2019/1937, a Housers informa os investidores dos riscos que correrão ao investir neste projeto:

  • Risco de perda total ou parcial do capital investido: o principal risco associado a qualquer tipo de investimento é a perda total ou parcial do capital investido, bem como a probabilidade de que a rentabilidade obtida seja inferior ao esperado ou estimado. Em geral, quanto maior for o retorno de um investimento, maior será o risco.
  • Risco de não obter o retorno monetário esperado: não existe um investimento seguro. Há sempre o risco de perder tudo o que foi investido ou de não obter o retorno monetário esperado. Os investimentos baseiam-se em expectativas futuras que podem não ser necessariamente cumpridas, pelo que o retorno esperado do investimento pode nunca ocorrer ou pode ocorrer de forma diferente do esperado.
  • Risco operacional: falhas ou problemas nos sistemas, pessoas ou fluxos operacionais podem ter um impacto significativo sobre o investimento. Em qualquer actividade em qualquer mercado existe sempre um risco operacional. 
  • Risco de inflação: a possibilidade de aumento da inflação pode diminuir o retorno de um investimento devido à perda inevitável do valor do capital em tais circunstâncias.
  • Risco de falta de liquidez: investir neste projeto pode significar que o investidor pode não ser capaz de dispor do capital investido quando necessário, tendo de prestar atenção ao prazo estimado para a liquidez do investimento e obter o retorno correspondente. 
  • Risco de não poder influenciar a gestão da empresa promotora: os investidores, como os mutuários, como qualquer outra pessoa fora de uma empresa comercial, não têm o direito de influenciar a gestão da soceidade promotora ou dos seus activos, a menos que tal esteja previsto no contrato de investimento, o que pode influenciar a gestão da soceidade promotora por parte do promotor.
  • Risco de fraude: como em qualquer outra transacção económica, existe um risco de fraude através da má utilização do capital angariado para o projeto. A fim de minimizar este risco, os levantamentos do montante de empréstimo que são entregues ao promotor serão efectuadas utilizando uma empresa externa à Housers que acompanhará o progresso do projeto, efectuando os levantamentos ao promotor de acordo com um calendário de levantamentos e após verificação administrativa do cumprimento de cada etapa anterior do calendário. Os montantes do empréstimo não retirados pelo promotor enquanto se aguarda o próximo marco do calendário de levantamentos, estarão sempre na Conta Housers do promotor na entidade de pagamento utilizada pela plataforma ("Lemonway"), até o promotor solicitar o levantamento, que será autorizado pela empresa de monitorização desde que o promotor cumpra os requisitos estabelecidos pela empresa de monitorização.

O capital investido não é garantido pelo fundo de garantia dos investimentos ou pelo fundo de garantia dos depósitos.

O investimento em bens imóveis deve ser realizado como estratégia de diversificação de uma carteira maior, e o investimento em projetos publicados na plataforma Housers não é recomendado para pessoas que não têm o conhecimento e a experiência para investir em bens imóveis.


Girona | 1 edifício
ES
Fase:
Financiado
Capital Financiado:
185.000 €
Objetivo financiamento:
185.000 €
Investidores:
90
Prazo:
11 meses
Modalidade:
Taxa Fixa
Unidades Reservadas:
68,18 %
Rentabilidade anual:
10,00 %
Rentabilidade total:
9,17 %
Investimento mínimo:
300 €
Status:
Sem incidência
Pontuação feita por Gloval
Visível só para os investidores da oportunidade.
Subir