Back

Divina Pastora - Madrid

Divina Pastora - Madrid

PROJECT SUMMARY

  • Purpose: to finance the costs for the cancellation of the charge and the construction of a development of 4 high-rise dwellings.
  • Location: Madrid (Spain).
  • Type of opportunity: loan.
  • Type: fixed rate.
  • Scoring: A carried out by the company GLOVAL.
  • Guarantee: First-rank mortgage guarantee registered in the land registry.
  • Loan To Value (HET): 39,43%
  • Loan To Value (Actual Value): 68,99%
  • Nominal annual interest rate: 10%.
  • Maturity: 18 months (+6 months possible extension with an NIR of 10%).
  • Opportunity profitability: 15%.
  • Type of capital repayment: at maturity.
  • Interest payment: quarterly.
  • Licence: Granted by Madrid City Council on 25 May 2023.
  • Status of work: Work has not yet started.
  • Minimum investment: 300€.

PROJECT

We present Divina Pastora, a fixed-rate project with a first mortgage guarantee that consists of financing the costs for the cancellation of the charge and the construction of a development of 4 high-rise homes in Madrid (Spain).

The dwellings will have 3 floors distributed as follows:

  • Ground floor.
  • First floor. 
  • Second floor.

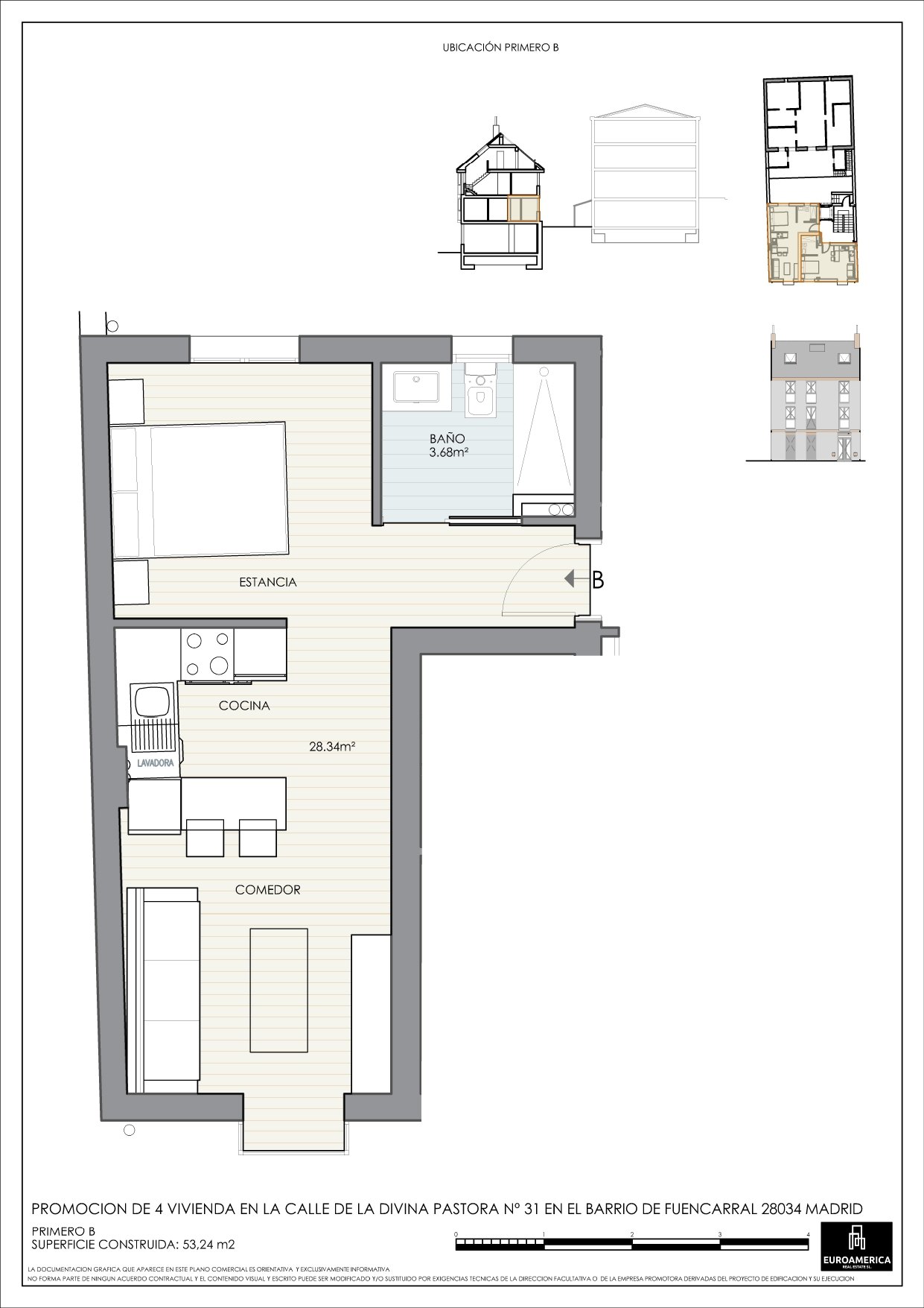
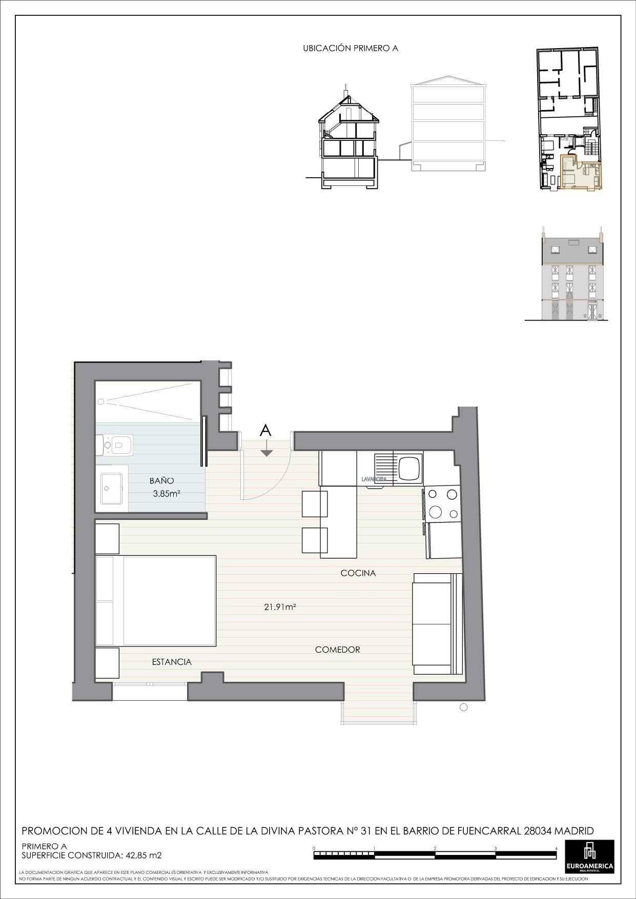
Distribution of the dwelling: 

  • 1 dwelling with 1 bedroom, 1 bathroom, lounge-dining room-kitchen. 
  • 2 dwellings with 1 bedroom, 1 bathroom, lounge-dining room-kitchen. 
  • 1 dwelling with 3 bedrooms, 2 bathrooms, lounge-dining room-kitchen and terrace.

The total built area of the development is 653.78 m2.

Building permit granted by Madrid City Council on 25 May 2023.

The total duration of the project will be 18 months with a possible extension of 6 additional months with an NIR of 10%.

The exit of the Housers loan will be made with the delivery of the homes at the maturity of the project.

This loan of €460,000 corresponds to a single-tranche project.


FINANCIAL OVERVIEW

Image gallery


Floorplan


DESCRIPTION OF THE MORTGAGE GUARANTEE

The mortgage collateral provided by the developer consists of the 4 multi-storey dwellings included in the project, located at 31 Divina Pastora Street, Madrid (Spain).

According to the appraisal certificate carried out by ATValor appraisal company, dated 08/06/2025:

The estimated value of the property under the completed-building hypothesis, according to the comparison method, amounts to €1,166,423.52.

The current appraised value of the described property amounts to €666,744.01.

The LTV (with Completed Building Hypothesis) is 39.43% (loan amount €460,000 / Completed Building Hypothesis €1,166,423.52).

The LTV (with Current Value) of the project is 68.99% (loan amount €460,000 / current appraised value €666,744.01).

GUARANTEE AGENT

The Guarantee Agent chosen for this project is Collateral Gestión S.L., a professional firm with experience in financial sectors that provides advisory services and fiduciary services in the issuance of bonds, guarantees, or other securities. Collateral Gestión S.L. is not affiliated with any financial services group.


DEVELOPER

The developer of the project, Inversiones y Patrimonios El Cano S.L (Subsidiary), is a company created for the development of this project that belongs to the group Euroamerica Real Estate S.L., a group of professionals with numerous projects carried out in the Mediterranean area. The promoter has equity of 672.926,67€ at 31/12/2024 and a share capital of 673.000€ at 31/12/2024. 

The promoter may in the future apply for other loans through the platform to obtain financing for the implementation of other projects, within the legal limits and provided that its financial situation allows it. The company's future leverage may therefore be higher.


SCORING

The scoring is carried out by GLOVAL.

Gloval is a benchmark firm in comprehensive valuation, engineering, consultancy, and data analysis services. The result of the integration in 2017 of companies with a solid market position, more than 70 years of accumulated experience, and more than 5 million valuations carried out, it provides services throughout the value chain of the real estate sector.

The company has a team of more than 1,000 professionals, a nationwide presence, and international coverage through its presence in countries such as Portugal, Greece, Brazil, Cape Verde, Angola, and Mozambique. Gloval has the confidence of the main players in the real estate sector and its current diversification strategy is focused on increasing its portfolio of services, meeting the needs of new sectors and clients, and continuing its international expansion.

For more information, visit www.gloval.es.


PROJECT MONITORING

GLOVAL will carry out the monitoring of this project, having a permanent control of the destination of the capital provided by the investors and delivering this capital to the promoter according to an agreed schedule after delivery of justification of compliance with certifications.


AREA

The Divina Pastora project is located in the north of Madrid, in the Nuestra Señora de Valverde area, Fuencarral, with hospitals, shops, and everything needed to enjoy a comfortable and modern family life. It is just steps away from the location of Madrid Nuevo Norte, the great urban development of the 21st century.


Location


PROJECT FEE

Housers will not charge any fee to the investor for this opportunity. The developer will be charged a fee that is determined based on a % of the funds raised for the project, provided that the project is successfully closed, i.e., that the funding target published on the platform is reached. In case it is not successfully closed, Housers will not charge this fee. Once the campaign is finished and as a previous step to the delivery of the money to the developer, this commission is deducted from it in favour of Housers. It does not affect the final profitability obtained by the investors, since the developer is the one who assumes its cost. In this opportunity, Housers' commission is 6.5% + VAT being the commission financed within the opportunity.


WARNINGS

Housers complies with Regulation (EU) 2020/1503 of the European Parliament and of the Council of 7 October 2020 on European providers of equity finance services for businesses, and amending Regulation (EU) 2017/1129 and Directive (EU) 2019/1937 and is authorised by the CNMV as a Participatory Finance Platform registered under number 13.

Housers is not a credit institution or an investment services company. It is not a member of any investment guarantee fund or deposit guarantee fund. Therefore, the invested capital is not covered by these funds.

Housers is neither a credit institution nor an investment services company nor does it supply financial advice, so nothing on this website should be interpreted as such. The information on this page is for general information purposes only and does not constitute specific advice.

The participatory financing projects published on the website are not subject to authorisation or supervision by the Comisión Nacional del Mercado de Valores or the Bank of Spain or any other national or foreign regulator. The information provided by the developer has not been reviewed by the CNMV and does not constitute a prospectus approved by the CNMV. 

The developer of the project is responsible to investors for the information it has provided to the crowdfunding platform for publication within the project on the website. The information shown has been prepared by Housers based on available information provided by the developer. Neither Housers nor its collaborating companies or suppliers accept responsibility or liability concerning the accuracy or sufficiency of the information referred to in the project. The statements or declarations with future projections refer exclusively to the date on which they were expressed, they do not form any guarantee of future results.

In accordance with REGULATION (EU) 2020/1503 OF THE EUROPEAN PARLIAMENT AND OF THE COUNCIL of 7 October 2020 on European providers of equity finance services for businesses, it is reported that this project is susceptible that related persons, according to Housers' Internal Code of Conduct, may acquire the status of investors and therefore lenders. The final amount and participation of these persons will be informed to all investors of the project once the financing of the project has been completed.

In accordance with REGULATION (EU) 2020/1503 OF THE EUROPEAN PARLIAMENT AND OF THE COUNCIL of 7 October 2020 on European providers of equity finance services for businesses, it is reported that this project is susceptible that related persons, according to Housers' Internal Code of Conduct, may acquire the status of investors and therefore lenders. The final amount and participation of these persons will be informed to all investors of the project once the financing of the project has been completed.


RISK

Before investing in this project, the investor must know the risks of his investment: Housers recommends carefully reading the Basic Information for the Investor.

In compliance with Article 2.1 of Regulation (EU) 2020/1503 of the European Parliament and of the Council of 7 October 2020 on European providers of equity crowdfunding services for businesses, and amending Regulation (EU) 2017/1129 and Directive (EU) 2019/1937, Housers hereby informs investors of the risks they will run when investing in this project:

Risk of total or partial loss of the invested capital: the main risk associated with any type of investment is the total or partial loss of the money invested, as well as the probability that the return obtained, will be lower than expected or estimated. In general, the higher the return on an investment, the higher the risk.

Risk of not obtaining the expected financial return: there is no such thing as a safe investment. There is always a risk of losing everything invested or of not obtaining the expected financial return. Investments are based on future expectations that may not necessarily be realized, so the expected financial return on the investment may never occur or may occur differently than expected.

Operational risk: failures or problems in systems, people or operational flows can have a significant impact on the investment. In any activity in any market, there is always an operational risk.

Inflation risk: the possibility of rising inflation may cause the return on investment to decline due to the inevitable loss in the value of money in such circumstances.

Risk of Lack of liquidity: investing in this project may mean that the investor may not be able to dispose of the money invested when needed, having to pay attention to the estimated timeframe for the liquidity of the investment and obtaining the corresponding return.

Risk of not being able to influence the management of the developer: investors, as borrowers, like any other person outside a commercial company, have no right to influence the management of the developer or its assets unless this is provided for in the investment contract, and the investment contract may influence the developer's management of the developer.

Fraud risk: as in any other economic operation, there is a risk of fraud due to improper use of the money obtained for the project. To minimize this risk, the drawdowns of the loan amount that are delivered to the developer will be made using a company external to Housers that will check the progress of the project, making the drawdowns to the developer according to a calendar of drawdowns and after administratively verifying the fulfilment of each earlier milestone of the calendar. The amounts of the loan not drawn down by the developer while waiting to reach the next milestone of the drawdown calendar will always be in the Housers Account of the developer in the payment entity used by the platform ("Lemonway") until the developer requests the drawdown, which will be authorized by the monitoring company if the developer meets the requirements established by the monitoring company.

The invested capital is not guaranteed by the investment guarantee fund or the deposit guarantee fund.

Investment in real estate should be conducted as a diversification strategy of a larger portfolio, and investment in projects published on the Housers platform is not recommended for people who do not have sufficient knowledge to understand the risks of investing in projects published by the crowdfunding platform.


Madrid | 1 building
ES
Phase:
Not Financed
Funded capital:
182,823 €
Financing goal:
460,000 €
Investors:
149
Term:
18 months
Type:
Development loan
Reserved Units:
75.00 %
Annual yield:
10.00 %
Total yield:
15.00 %
Minimum investment:
300 €
Scoring done by Gloval
Visible only to investors in the opportunity.
Go up