Te presentamos Valle de Arán II, segunda fase de un proyecto de tipo fijo con garantía hipotecaria de primer grado que consiste en financiar los gastos para el desarrollo inmobiliario y construcción de 9 viviendas plurifamiliares y 17 plazas de garaje, en Les, Lérida, España.
La superficie total construida de la promoción es de 1.850 m2.
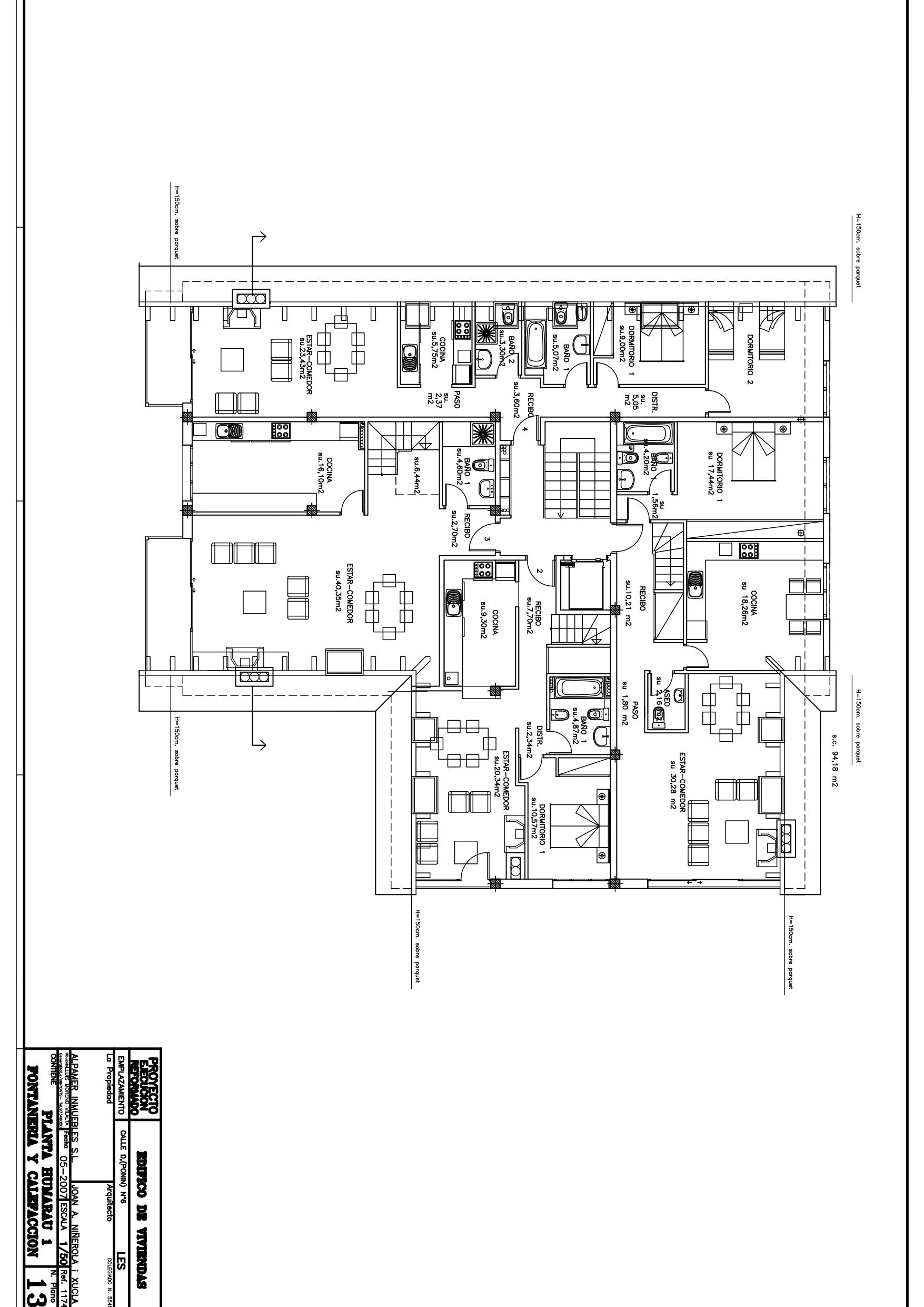
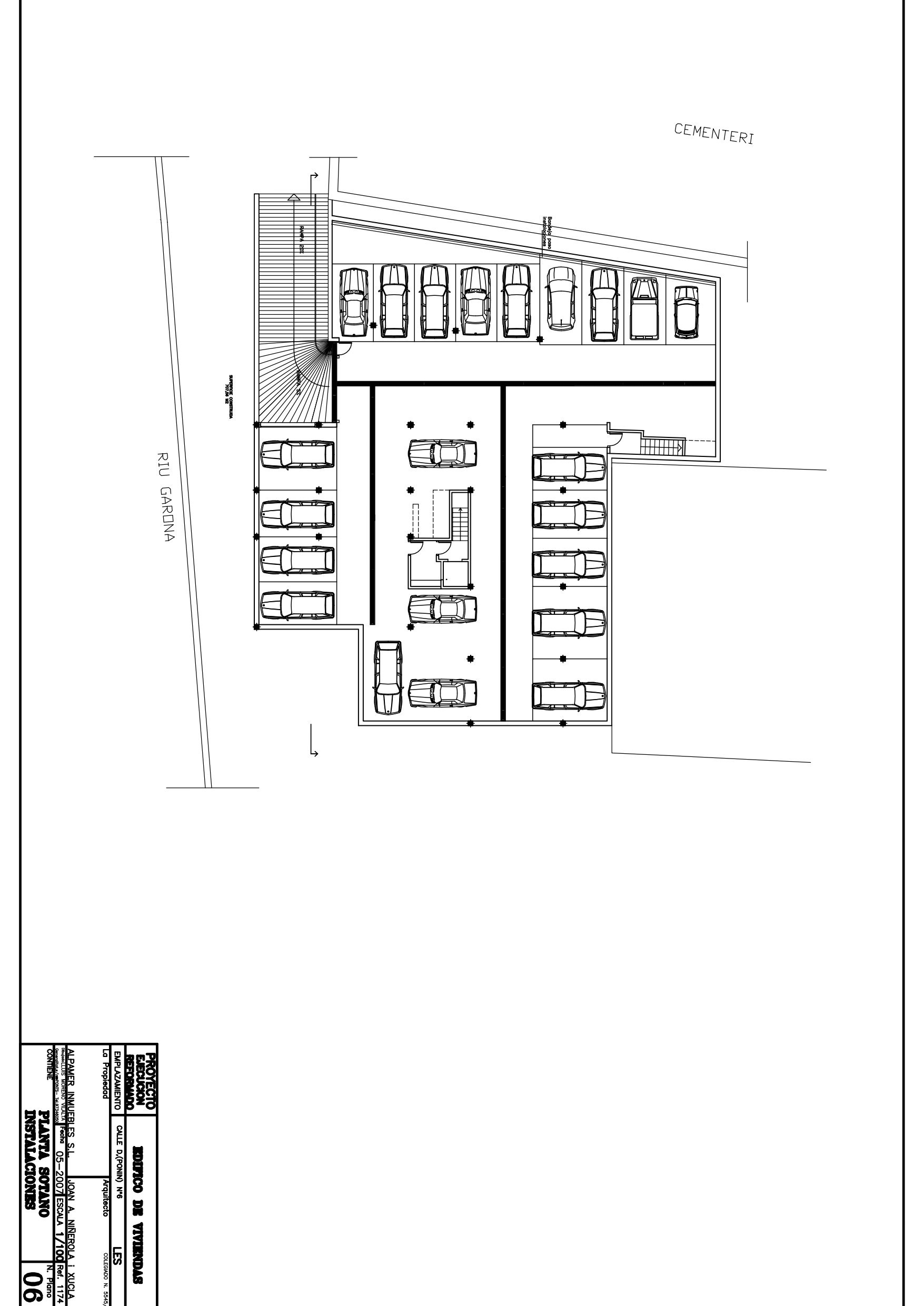
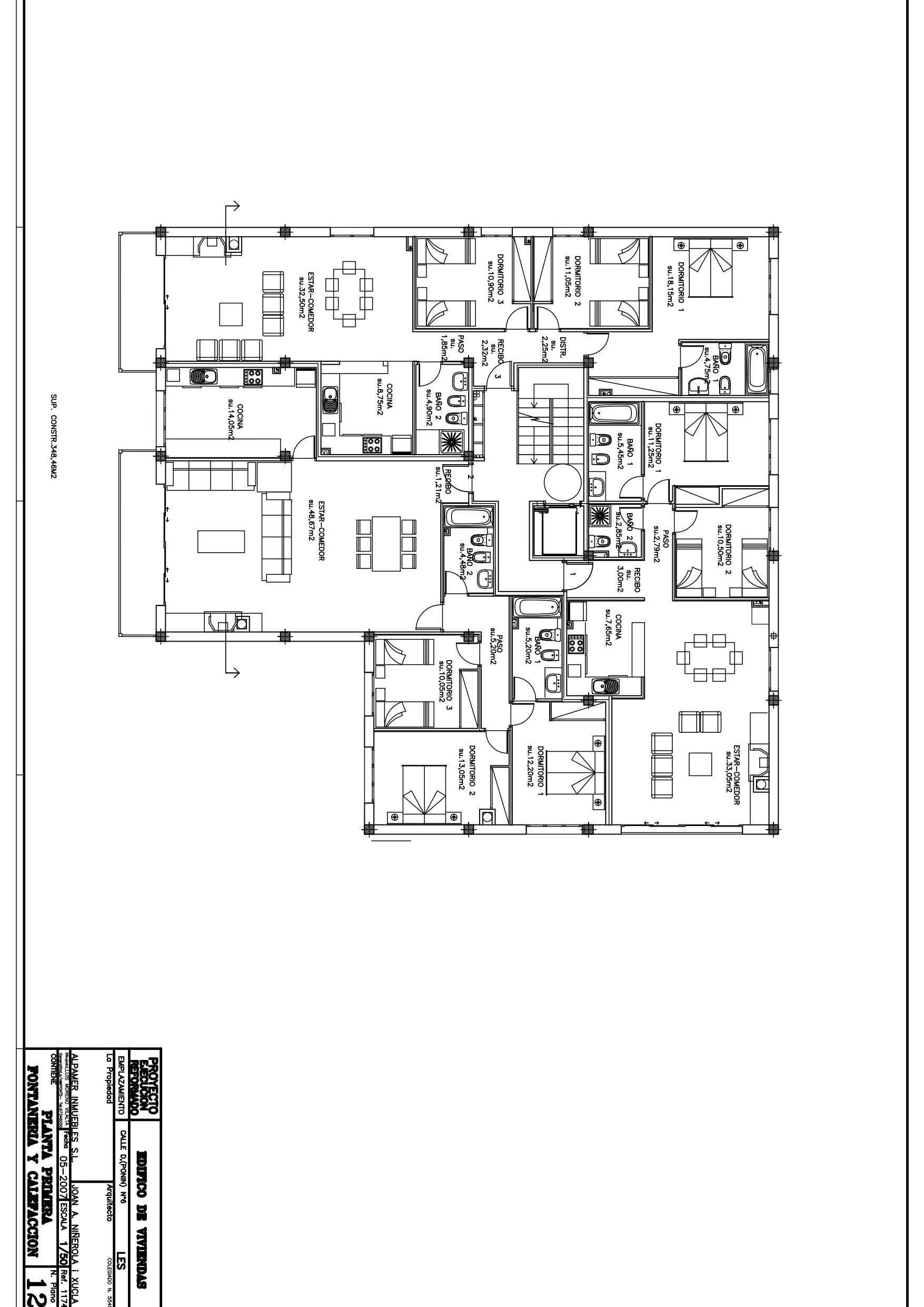
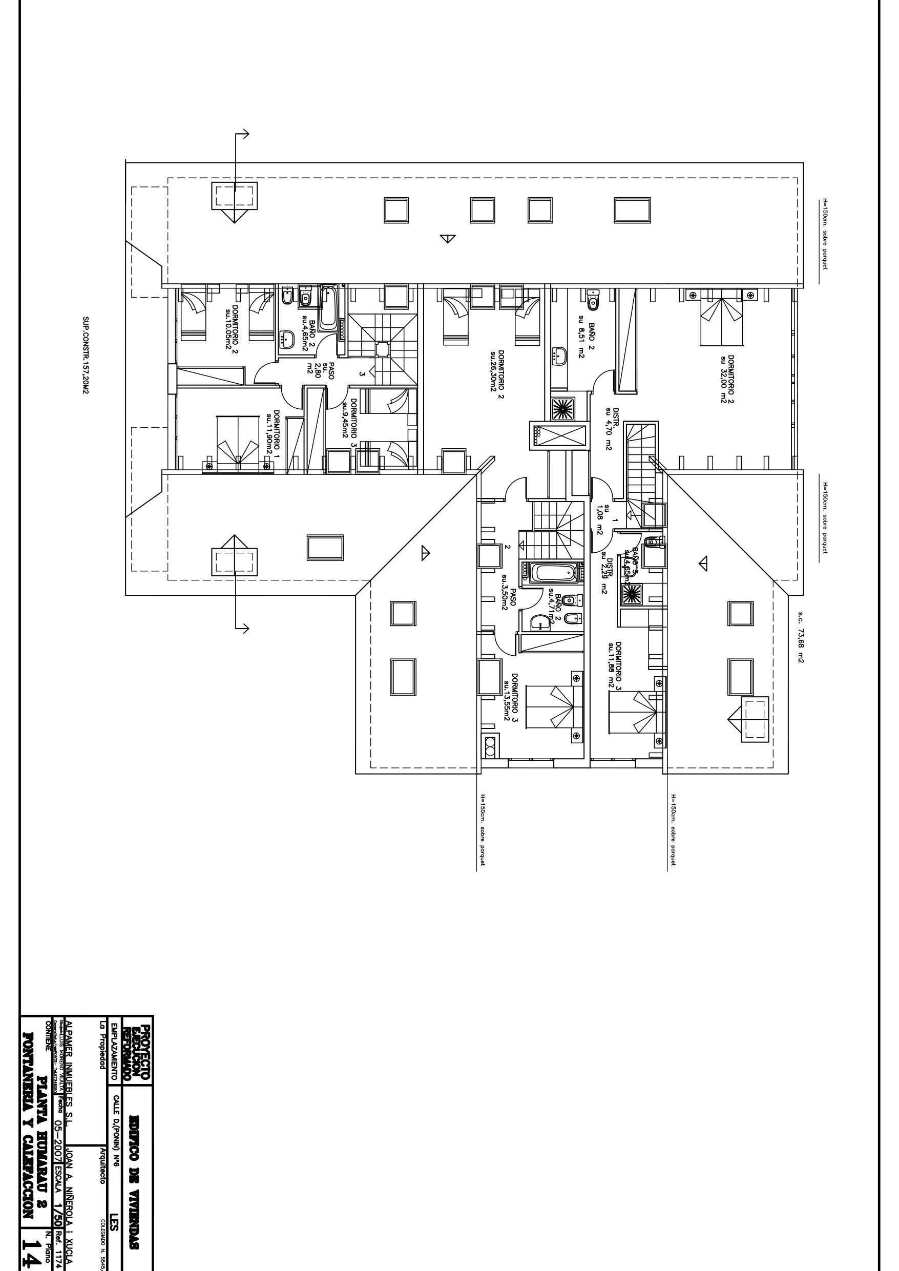
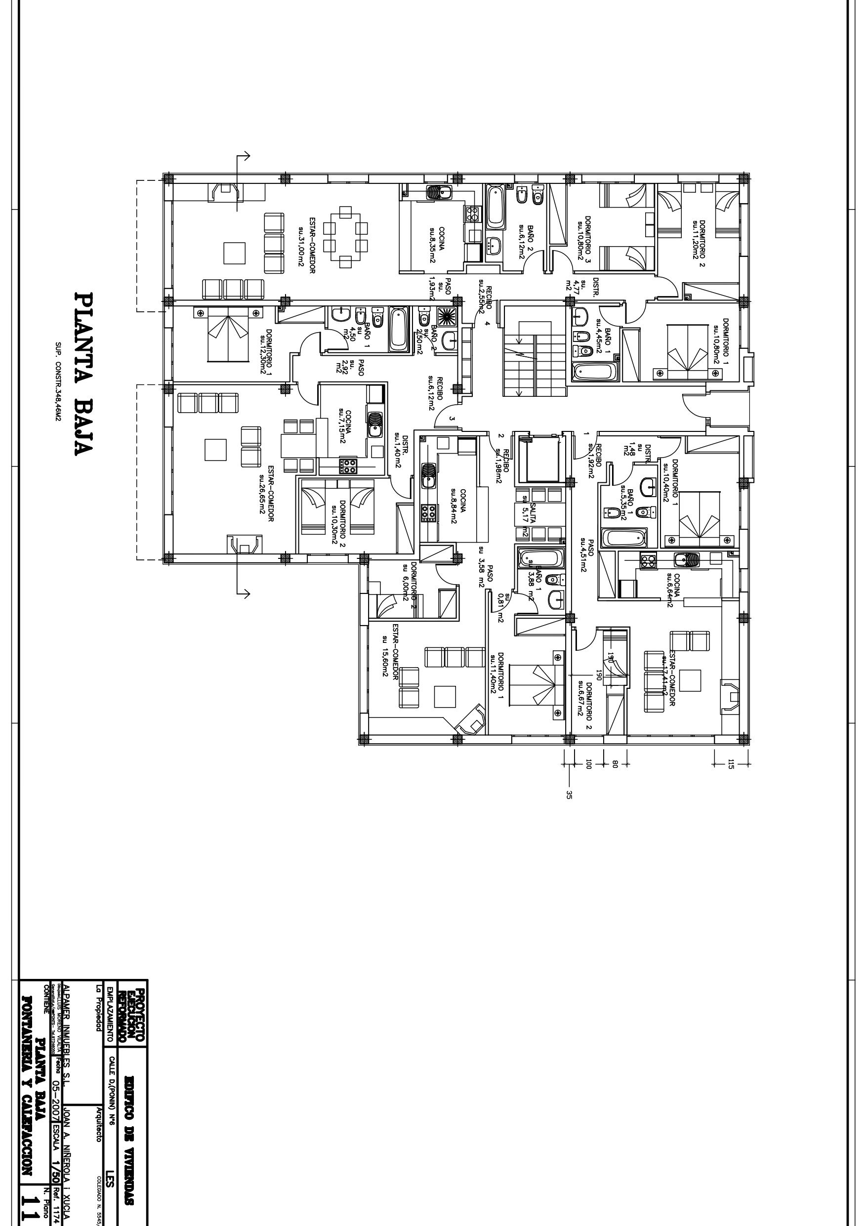
Promoción de obra nueva de 9 viviendas plurifamiliares y 17 plazas de garaje, el edificio consta de 3 alturas distribuidas de la siguiente manera:
Distribución de la planta baja: 4 viviendas
Distribución de la planta primera: 2 viviendas
Distribución de la planta bajo cubierta: 3 viviendas
De las 9 viviendas que componen el proyecto, 6 ya se encuentran reservadas, lo que supone el 66,67% de la promoción.
La duración total del proyecto será de 10 meses con una posible prórroga de 6 meses adicionales con una TIN del 10%.
La salida del préstamo Housers se realizará con la entrega de las viviendas al vencimiento del proyecto.
Este préstamo de 325.000€ corresponde al segundo tramo de un proyecto de 1.000.000€, se prevén tres tramos del proyecto, cuya fecha de vencimiento final es el 8 de agosto de 2026. La duración del presente tramo es estimativa, y la misma está condicionada al tiempo en el que el préstamo de esta fase del proyecto esté en financiación, y, por consiguiente, se proceda a la novación de la garantía hipotecaria a la del tramo anterior, ya que al ser un proyecto único la fecha de vencimiento será la misma para todos los tramos del proyecto.

La garantía hipotecaria aportada por el promotor son las 9 viviendas plurifamiliares y 17 plazas de garaje objeto del proyecto situadas en la calle Carrera, Dera, 6, Les, Lérida, España.
Según el certificado de tasación realizado por Valum con fecha 20/08/2025 el valor hipotecario/tasación actual del inmueble descrito asciende a la cantidad de 1.932.314,69€.
Por tanto, la tasación del inmueble hipotecado sobre el préstamo es de un 286,27% (valor de hipotecado 1.932.314,69€ / importe del préstamo 675.000€). El LTV (Loan To Value) del proyecto es del 34,93% (importe del préstamo 675.000€ / valor de tasación actual 1.932.314,69€).
El valor estimado del inmueble en hipótesis terminado según el método de comparación asciende a 2.676.466,27€.
El Agente de Garantías elegido para este proyecto es Ramallo Legal Abogados, S.L.P., firma profesional con amplia experiencia en sectores financieros que proporciona servicios de asesoramiento y prestación de servicios fiduciarios en emisión de obligaciones, garantías u otros valores. Ramallo Legal Abogados, S.L.P. no está afiliada a ningún grupo de servicios financieros.
La empresa promotora del proyecto es Purica Multigremio Instalaciones, Mantenimientos y Servicios, S.L, empresa perteneciente al sector de la construcción en la rama de la edificación tanto de obra nueva como de reformas, rehabilitación y mantenimiento de inmuebles. El promotor tiene un capital socuial a 31/12/2024 de 3.000€ y unos fondos propios a 31/12/2024 de 431.761,66€
Purica Multigremio Instalaciones, Mantenimientos y Servicios, S.L es una promotora Inmobiliaria con más de 11 años de experiencia en el sector de la construcción, especializada en la ejecución de obras residenciales, urbanas, industriales y rehabilitación de edificios.
Se destacan por su compromiso con la calidad, el cumplimiento de plazos y la seguridad en obra, trabajando tanto en proyectos propios como para terceros, desarrollando la mayor parte de sus obras en el Valle de Aran.
El promotor podrá solicitar en el futuro otros préstamos a través de la plataforma para la obtención de financiación para la realización de otros proyectos dentro de los límites legales y siempre que su situación financiera lo permita. Así, el grado de apalancamiento futuro de la sociedad podrá ser más elevado.
La compañía cuenta con un equipo de más de 1.000 profesionales, presencia en todo el territorio nacional y cobertura internacional a través de su presencia en países como Portugal, Grecia, Brasil, Cabo Verde, Angola y Mozambique. Gloval cuenta con la confianza de los principales actores del sector inmobiliario y su actual estrategia de diversificación está centrada en aumentar su cartera de servicios, atender a las necesidades de nuevos sectores y clientes y dar continuidad a su expansión internacional.
La empresa GLOVAL llevará a cabo la monitorización de este proyecto, teniendo un control permanente del destino del capital aportado por los inversores y entregando dicho capital al promotor según un calendario consensuado previa entrega de justificación de cumplimiento de certificaciones. Para ello el promotor abrirá un wallet donde se transferirán los fondos financiados por los inversores de manera que cada disposición al promotor deberá ser justificada a la empresa del monitoring no entregándose por tanto al promotor el importe del préstamo completo de una vez.
El proyecto Valle de Arán II está situado en el Les, Lleida, un pequeño pueblo del Valle de Arán, ubicado en el Pirineo Catalán. Atravesado por el río Garona y la carretera Nacional 230.
Se encuentra colindante a los pueblos de Bossòst, al pequeño y mágico pueblo de Bausen y a Francia. Como otros pueblos del valle, comparte el encanto de ser atravesado por las aguas del Río Garona, especialmente relevante y protagonista de la Historia del Valle de Arán. Este río le da además ese aire de frescor que se añade a la hermosura del pueblo, el cual esconde en el subsuelo aguas termales.
Está a tan solo 30 kilómetros de la estación de esquí Baqueira/Beret, enclave privilegiado que combina tranquilidad, belleza natural y acceso directo a una de las mejores estaciones de esquí de Europa. Esta ubicación privilegiada permite que se disfrute de una experiencia única en cualquier estación del año, ya que El Valle de Arán es sinónimo de naturaleza, cultura y aventura.
Entre las actividades que ofrece se encuentran el Esquí y snowboard en Baqueira/Beret, la estación más prestigiosa de España, senderismo, rutas en bicicleta de montaña, paseos a caballo y descenso de ríos, así como balnearios naturales, una exquisita gastronomía local y fiestas tradicionales llenas de color y autenticidad.
Housers no cobrará ninguna comisión al inversor por esta oportunidad. Al promotor Housers le cobrará una tarifa que se determinará en base a un % sobre los fondos obtenidos por el promotor para el proyecto, siempre y cuando el proyecto se financie con éxito. En caso de no financiarse con éxito el proyecto, Housers no cobrará esta comisión al promotor. Una vez financiado el proyecto y como paso previo a la entrega del dinero al promotor según los calendarios de disposiciones, esta comisión se descontará del importe del préstamo a transferir al promotor en favor de Housers, no repercutiendo en la rentabilidad final obtenida por los inversores ya que es el promotor quien asume su coste. En esta oportunidad la comisión de Housers es del 5,5% + IVA siendo la comisión financiada dentro de la oportunidad.
Housers cumple con el Reglamento (UE) 2020/1503 del Parlamento Europeo y del Consejo de 7 de octubre de 2020 relativo a los proveedores europeos de servicios de financiación participativa para empresa, y por el que se modifican el Reglamento (UE) 2017/1129 y la Directiva (UE) 2019/1937 y está autorizada por la CNMV como Plataforma de Financiación Participativa inscrita con el número 13.
Housers no es una entidad de crédito ni una empresa de servicios de inversión. No está adherida a ningún fondo de garantía de inversiones ni a ningún fondo de garantía de depósitos. Por tanto, el capital invertido no está cubierto por estos fondos.
Housers ni es una entidad de crédito ni una empresa de servicios de inversión ni proporciona asesoramiento financiero, por lo que nada en esta web debe interpretarse como tal. La información que aparece en esta página es para fines de información general y no constituye un asesoramiento específico.
Los proyectos de financiación participativa publicados en la web no son objeto de autorización ni de supervisión por la Comisión Nacional del Mercado de Valores ni por el Banco de España ni por ningún otro regulador, nacional o extranjero. La información facilitada por el promotor no ha sido revisada por la CNMV ni constituye un folleto aprobado por esta.
El promotor del proyecto es responsable frente a los inversores de la información que ha proporcionado a la plataforma de financiación participativa para su publicación dentro del proyecto en la página web. La información mostrada ha sido preparada por Housers en base a información disponible proporcionada por el promotor. Ni Housers ni sus empresas colaboradoras o proveedores aceptan responsabilidad u obligación en relación con la exactitud o suficiencia de la información referida al proyecto. Las afirmaciones o declaraciones con proyecciones de futuro se refieren exclusivamente a la fecha en la que se manifestaron, no constituyen garantía alguna de resultados futuros.
Conforme al REGLAMENTO (UE) 2020/1503 DEL PARLAMENTO EUROPEO Y DEL CONSEJO de 7 de octubre de 2020 relativo a los proveedores europeos de servicios de financiación participativa para empresas, se informa que el presente proyecto es susceptible de que personas vinculadas, conforme al Reglamento Interno de Conducta de Housers, puedan adquirir la condición de inversores y por lo tanto de prestamistas. El importe y participación definitivo de estas personas, será informado a todos los inversores del proyecto una vez se haya completado la financiación del mismo.
Antes de invertir en este proyecto el inversor debe conocer los riesgos de su inversión: Housers recomienda leer con atención la Información Básica para el Inversor.
En cumplimiento del artículo 2.1 del Reglamento (UE) 2020/1503 del Parlamento Europeo y del Consejo de 7 de octubre de 2020 relativo a los proveedores europeos de servicios de financiación participativa para empresa, y por el que se modifican el Reglamento (UE) 2017/1129 y la Directiva (UE) 2019/1937, Housers procede a informar al inversor de los riesgos que correrá al invertir en este proyecto:
El capital invertido no está garantizado por el fondo de garantía de inversiones ni por el fondo de garantía de depósitos.
La inversión en inmuebles debe realizarse como estrategia de diversificación de una cartera mayor, no estando recomendada la inversión en proyectos publicados en la plataforma Housers a personas que no dispongan de conocimientos suficientes para entender los riesgos de realizar inversiones en proyectos publicados por plataforma de financiación participativa.